Description
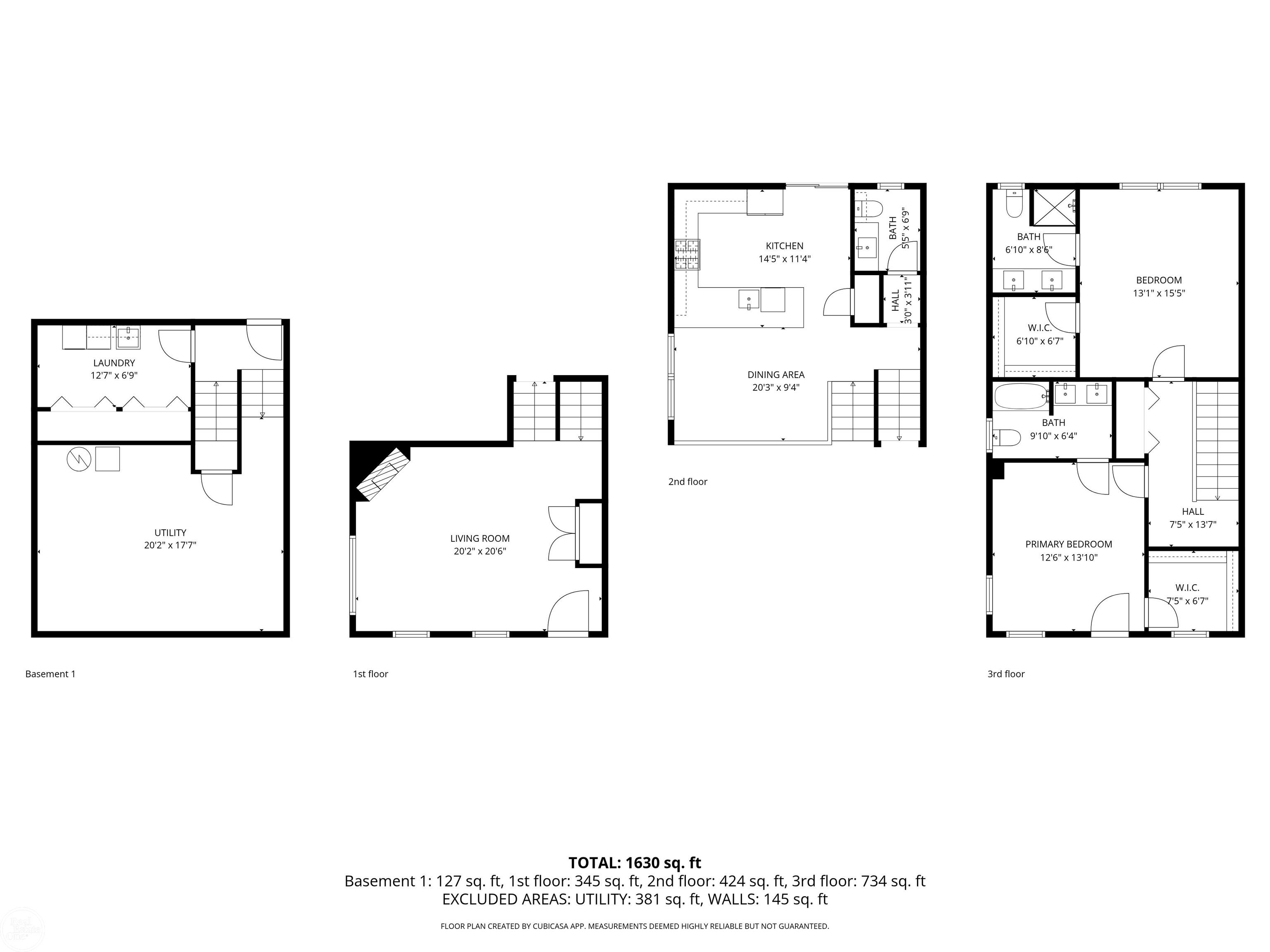
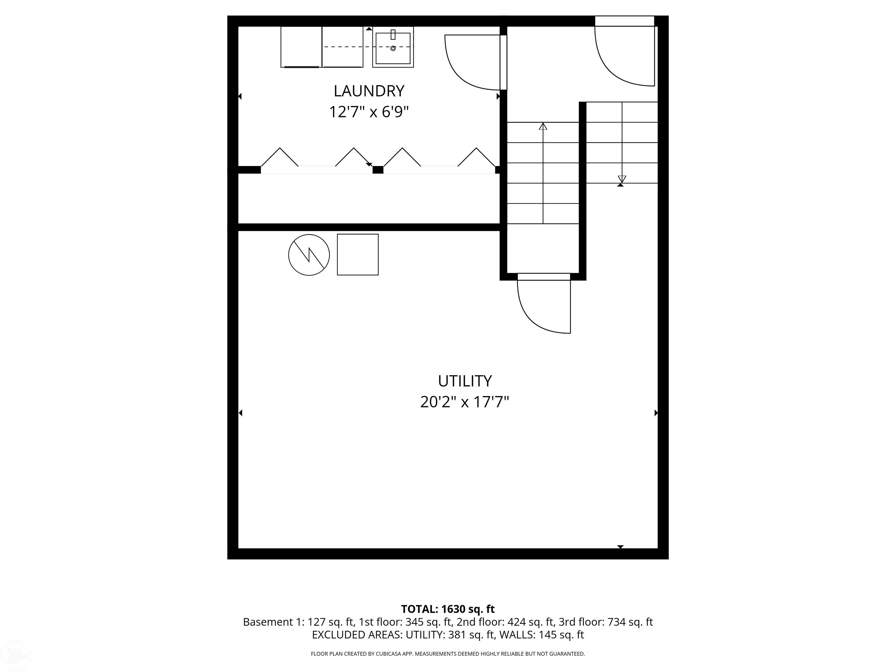
New Listing! Pride in ownership shines throughout this upscale, uniquely styled home located in a rapidly growing area. This end unit home features a carpeted great room which offers tall ceilings with overhead lighting, an electric fireplace, a ceiling fan, and an abundance of windows that fill the space with natural light. The beautiful kitchen features tall cabinetry, granite countertops, hardwood floors, a pantry, and stainless steel appliances. A door off the kitchen leads to the back deck—perfect for outdoor dining. A convenient half bath is also located on this level. Upstairs, hardwood floors run through the hallway and both bedrooms. The spacious primary bedroom includes a large walk-in closet and a private bath with double sinks, granite counters, and a stand-up shower. The second bedroom also features its own private bath, fully updated in 2022, with a granite-top vanity and tub. This bedroom also offers a walk-in closet and a charming balcony overlooking the front of the condo—ideal for enjoying warm summer mornings and evenings. The first-floor laundry room includes two sets of double closets, a dryer, and a new washer (6/25). The partially finished basement provides additional living or storage space and has a new hot water tank (1/26). Additional highlights: Attached 2-car garage, low monthly HOA fees, Exceptionally clean and well-maintained—one of the nicest condos you’ll find! A must-see property!
Location

Source MLS MiRealSource. Provided through IDX via MiRealSource. Courtesy of MiRealSource Shareholder. Copyright MiRealSource. The information published and disseminated by MiRealSource is communicated verbatim, without change by MiRealSource, as filed with MiRealSource by its members. The accuracy of all information, regardless of source, is not guaranteed or warranted. All information should be independently verified.
Copyright MiRealSource. All rights reserved. The information provided hereby constitutes proprietary information of MiRealSource, Inc. and its shareholders, affiliates, and licensees and may not be reproduced or transmitted in any form or by any means, electronic or mechanical, including photocopy, recording, scanning, or any information storage and retrieval system, without written
permission from MiRealSource, Inc. Updated: 22nd April, 2026 11:31 PM (UTC)
Copyright MiRealSource. All rights reserved. The information provided hereby constitutes proprietary information of MiRealSource, Inc. and its shareholders, affiliates, and licensees and may not be reproduced or transmitted in any form or by any means, electronic or mechanical, including photocopy, recording, scanning, or any information storage and retrieval system, without written
permission from MiRealSource, Inc. Updated: 22nd April, 2026 11:31 PM (UTC)


