Description
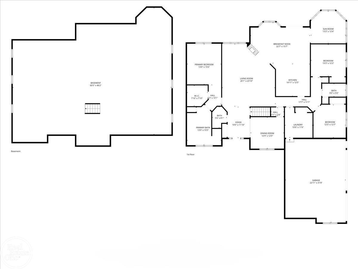
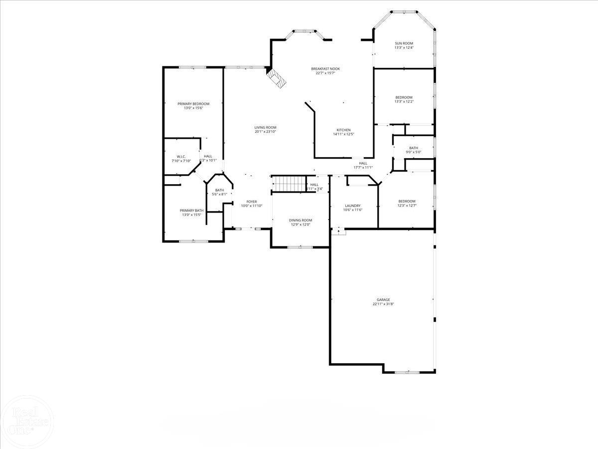
Mint-condition great room ranch in the highly sought-after Ravines at the Orchards community. This desirable split-ranch floor plan offers a private primary suite on one side of the home, with two additional bedrooms on the opposite side—perfect for both comfort and privacy. A large, sun-filled, year-round Florida room overlooks a sprawling, private backyard-ideal for relaxing or entertaining. The great room and kitchen are connected by a three-way gas fireplace, creating a warm and inviting atmosphere. Beautiful oak hardwood flooring flows throughout most of the main level. The chef’s gourmet island kitchen features stainless steel, commercial-grade appliances, including a new Bosch dishwasher, new GE Profile French door refrigerator/freezer, and new GE range hood. Step outside to a large brick paver patio overlooking meticulously maintained grounds, complete with a new brick paver walkway leading to the driveway. Major updates have already been completed for peace of mind: new roof (complete tear-off, 2018), new furnace (2019), new A/C unit and hot water tank (2023), professionally installed closet systems throughout (2026), new faucets (2026), new keyed entry doors with deadbolt (2026) and fresh mulch (2026). The home also features copper plumbing throughout. Impeccably maintained and truly move-in ready!
Location

Source MLS MiRealSource. Provided through IDX via MiRealSource. Courtesy of MiRealSource Shareholder. Copyright MiRealSource. The information published and disseminated by MiRealSource is communicated verbatim, without change by MiRealSource, as filed with MiRealSource by its members. The accuracy of all information, regardless of source, is not guaranteed or warranted. All information should be independently verified.
Copyright MiRealSource. All rights reserved. The information provided hereby constitutes proprietary information of MiRealSource, Inc. and its shareholders, affiliates, and licensees and may not be reproduced or transmitted in any form or by any means, electronic or mechanical, including photocopy, recording, scanning, or any information storage and retrieval system, without written
permission from MiRealSource, Inc. Updated: 27th April, 2026 11:51 PM (UTC)
Copyright MiRealSource. All rights reserved. The information provided hereby constitutes proprietary information of MiRealSource, Inc. and its shareholders, affiliates, and licensees and may not be reproduced or transmitted in any form or by any means, electronic or mechanical, including photocopy, recording, scanning, or any information storage and retrieval system, without written
permission from MiRealSource, Inc. Updated: 27th April, 2026 11:51 PM (UTC)


