Description
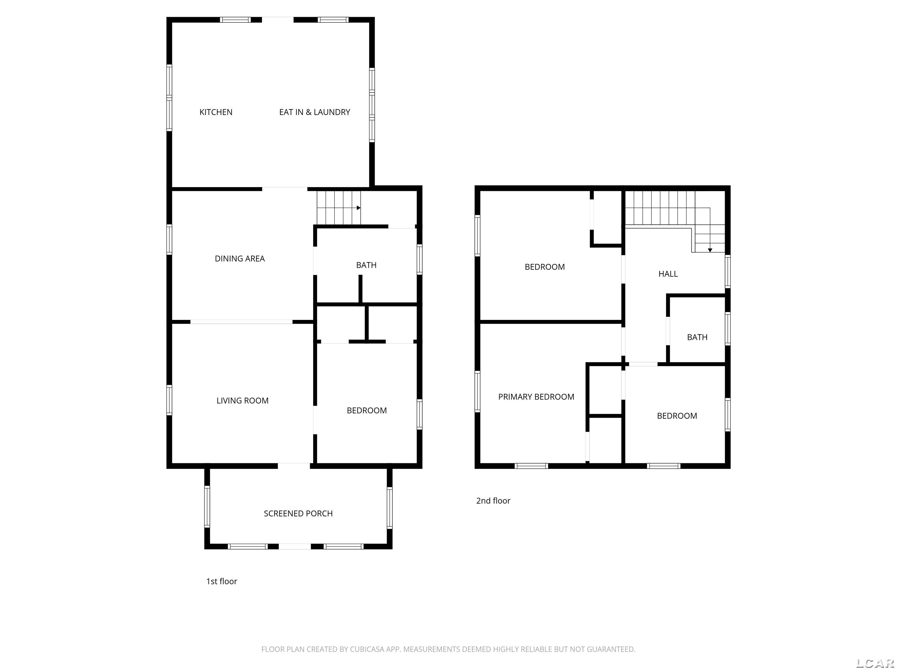
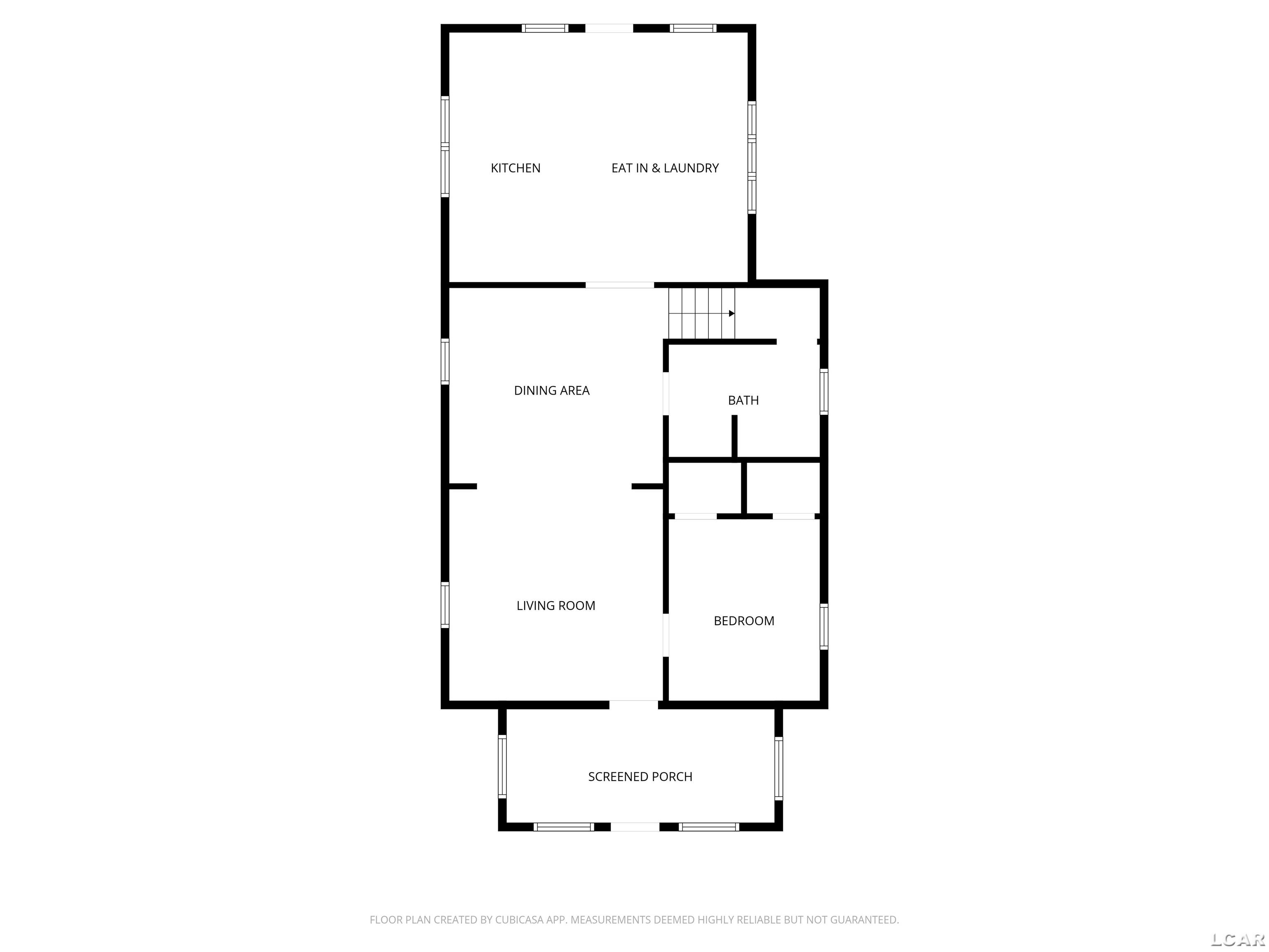
More pictures and floor plan to come. Step inside 231 S Main, Britton, Michigan, and be welcomed by large rooms, an open floor plan and updates. The spacious open main level invites you in with a cozy living room that gently flows into a formal dining space and a generous kitchen filled with abundant storage—perfect for gathering, cooking, and everyday moments. A delightful front porch/mud room creates the perfect transition from outdoors to in, while a main-floor bedroom, full bath, and convenient laundry add ease and comfort to daily living. Upstairs, three additional bedrooms and a half bath offer flexible spaces for rest, work, or play. Outside, enjoy peaceful mornings and lively evenings on the 16×16 back deck, along with a one-car garage, a large shed, and a fully fenced yard—ideal for pets, play, and making memories that last.
Location

Source MLS MiRealSource. Provided through IDX via MiRealSource. Courtesy of MiRealSource Shareholder. Copyright MiRealSource. The information published and disseminated by MiRealSource is communicated verbatim, without change by MiRealSource, as filed with MiRealSource by its members. The accuracy of all information, regardless of source, is not guaranteed or warranted. All information should be independently verified.
Copyright MiRealSource. All rights reserved. The information provided hereby constitutes proprietary information of MiRealSource, Inc. and its shareholders, affiliates, and licensees and may not be reproduced or transmitted in any form or by any means, electronic or mechanical, including photocopy, recording, scanning, or any information storage and retrieval system, without written
permission from MiRealSource, Inc. Updated: 22nd April, 2026 10:23 AM (UTC)
Copyright MiRealSource. All rights reserved. The information provided hereby constitutes proprietary information of MiRealSource, Inc. and its shareholders, affiliates, and licensees and may not be reproduced or transmitted in any form or by any means, electronic or mechanical, including photocopy, recording, scanning, or any information storage and retrieval system, without written
permission from MiRealSource, Inc. Updated: 22nd April, 2026 10:23 AM (UTC)


