Description
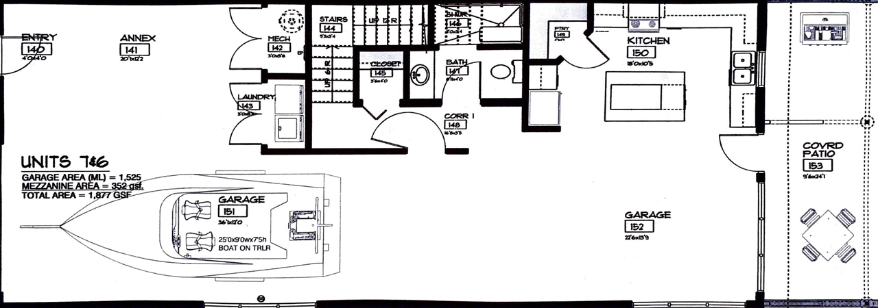
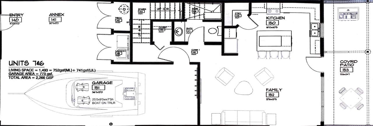
Grand River Recreational Condos. Unit 7 is your opportunity to own a highly customizable recreational condo with 40 feet of deeded Grand River frontage and private dock access. Designed for both function and flexibility, this unit is zoned to allow a 50/50 mix of residential and storage use. It can be finished out into a 2-bedroom, 2-bathroom condo with up to 3,000 total square feet, including storage space. Inside, you'll find premium features already in place, including stubbed plumbing, dual-zone radiant in-floor heating, and double 5/8' drywall on all party walls for soundproofed comfort. Gas and electricity are individually metered. Step outside to your 10' x 24' covered patio and enjoy direct water views--ideal for morning coffee, evening sunsets, or entertaining by the river. Additional highlights include 22-foot-high ceilings, a 14-foot-high garage door, and a spacious 25' x 60' unit footprint. See photos for floor plans and potential layout options.
Location

Source MLS MiRealSource. Provided through IDX via MiRealSource. Courtesy of MiRealSource Shareholder. Copyright MiRealSource. The information published and disseminated by MiRealSource is communicated verbatim, without change by MiRealSource, as filed with MiRealSource by its members. The accuracy of all information, regardless of source, is not guaranteed or warranted. All information should be independently verified.
Copyright MiRealSource. All rights reserved. The information provided hereby constitutes proprietary information of MiRealSource, Inc. and its shareholders, affiliates, and licensees and may not be reproduced or transmitted in any form or by any means, electronic or mechanical, including photocopy, recording, scanning, or any information storage and retrieval system, without written
permission from MiRealSource, Inc. Updated: 24th April, 2026 4:12 PM (UTC)
Copyright MiRealSource. All rights reserved. The information provided hereby constitutes proprietary information of MiRealSource, Inc. and its shareholders, affiliates, and licensees and may not be reproduced or transmitted in any form or by any means, electronic or mechanical, including photocopy, recording, scanning, or any information storage and retrieval system, without written
permission from MiRealSource, Inc. Updated: 24th April, 2026 4:12 PM (UTC)


