Description
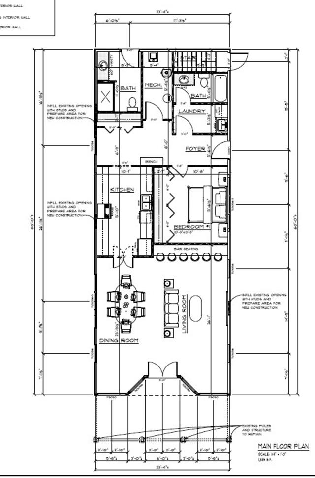
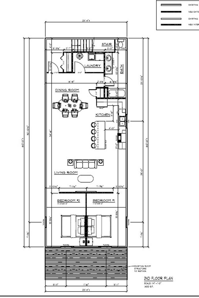
Versatile two-story commercial building offering a unique opportunity for a variety of future uses. Located in the village of Bristol, close to Luther, this solid structure is ready for its next chapter—whether as a commercial space, single-family residence, or duplex conversion. Major updates were completed in 2016, including a new roof, foundation improvements, and electrical upgrades, providing a strong starting point for redevelopment. Recent additional improvements of $54,000 include new well, demo work, insulation, camper pad, fencing and more!! The current owners have approved plans in place for conversion to a duplex, allowing a buyer to move forward with a clear vision and defined path. The township has no local zoning restrictions, subject only to county and state requirements, offering flexibility for investors, owner-occupants, or business users with creative plans. The building is mostly vacant and ready for the next use. Images showing the duplex conversion are enhanced renderings intended to illustrate potential use and layout. There is also an additional storage building in the rear. An excellent opportunity for those seeking a value-add project with multiple end-use options in a convenient location, within miles of the Manistee National Forest, Little Manistee River, Pine River and ATV trail heads/miles of trails.
Location

Source MLS MiRealSource. Provided through IDX via MiRealSource. Courtesy of MiRealSource Shareholder. Copyright MiRealSource. The information published and disseminated by MiRealSource is communicated verbatim, without change by MiRealSource, as filed with MiRealSource by its members. The accuracy of all information, regardless of source, is not guaranteed or warranted. All information should be independently verified.
Copyright MiRealSource. All rights reserved. The information provided hereby constitutes proprietary information of MiRealSource, Inc. and its shareholders, affiliates, and licensees and may not be reproduced or transmitted in any form or by any means, electronic or mechanical, including photocopy, recording, scanning, or any information storage and retrieval system, without written
permission from MiRealSource, Inc. Updated: 22nd April, 2026 5:51 PM (UTC)
Copyright MiRealSource. All rights reserved. The information provided hereby constitutes proprietary information of MiRealSource, Inc. and its shareholders, affiliates, and licensees and may not be reproduced or transmitted in any form or by any means, electronic or mechanical, including photocopy, recording, scanning, or any information storage and retrieval system, without written
permission from MiRealSource, Inc. Updated: 22nd April, 2026 5:51 PM (UTC)


